Beschrijving
Vrijstaand wonen met slapen & baden op de begane grond, volop ruimte rondom en vrij uitzicht over de landerijen.
Deze levensloop bestendige woning staat op een royaal perceel van maar liefst 900 m² en ligt aan de rand van het dorp Vlagtwedde met de natuur letterlijk om de hoek.
De woning beschikt over twee slaapkamers en een badkamer op de begane grond. Dat maakt het geheel uitermate geschikt voor wie gelijkvloers wil wonen De verdieping biedt mogelijkheden voor extra slaapgelegenheid.
De tuin is een van de grote pluspunten van deze woning. Aan de achterzijde geniet je van vrij uitzicht over de landerijen, een heerlijk gevoel van ruimte en privacy. Daarnaast is er een stenen garage aanwezig, ideaal voor auto, hobby of extra opslag.
De ligging is aantrekkelijk: Aan de rand van het sfeervolle dorp Vlagtwedde, in het hart van Westerwolde. Het dorp combineert rust, ruimte en natuur met alle dagelijkse voorzieningen binnen handbereik. Bovendien ligt het centraal ten opzichte van Ter Apel, Winschoten en Stadskanaal.
Voor wandelliefhebbers is dit ook een buitenkans. Het nabij gelegen natuurgebied "Metbroekbos" ligt nagenoeg in de achtertuin.
Een woning die rust, ruimte en comfort combineert op een prachtige plek.
Neem voor meer informatie of een bezichtiging snel contact op met team REGIO MAKELAAR in Stadskanaal. Wij kijken ernaar uit om je te verwelkomen en je rond te leiden.
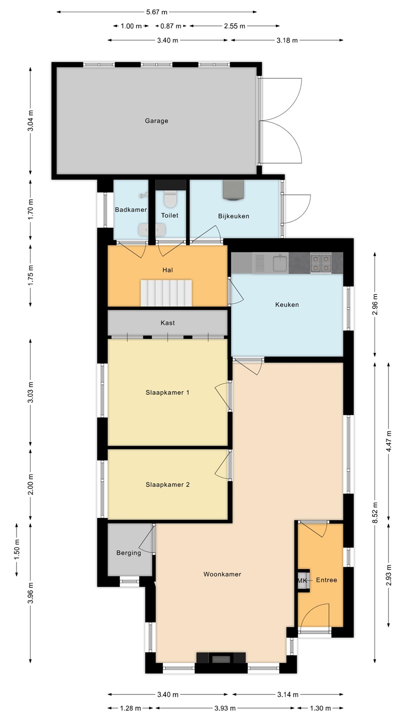
Indeling
- Entree, hal, meterkast
- Lichte , Z-vormige woonkamer met eethoek en een laminaat vloer. Rookkanaal aanwezig, maar niet in gebruik.
- Berging/provisiekast
- Keuken met laminaat vloer en voorzien van koelkast, oven, vaatwasser, 4-pits gaskooktoestel en afzuigkap
- Slaapkamer met vaste kastenwand
- 2e Slaapkamer, beide voorzien van een laminaat vloer
- Tussenhal met plavuizen vloer en trapopgang
- Toilet met fonteintje
- Douche met wastafel en designradiator
- Bijkeuken met achter entree en wasmachine-/drogeropstelling
Eerste verdieping
- Vaste trap naar....
- Zolderruimte
- 3e Slaapkamer met dakraam
Tuin
- Carport
- Vrijstaande, houten blokhut
- Overkapping
- Diepe achtertuin
Bijzonderheden
- Houten vloer van de woonkamer is vernieuwd in 2025
- Vernieuwde meterkast
- Gedeeltelijk voorzien van dubbel glas
- Cv-ketel, Remeha Avanta, bouwjaar 2021, eigendom
Vlagtwedde, met ca. 2.300 inwoners, beschikt over diverse voorzieningen, waaronder basisscholen, huisartsenpraktijken, een gevarieerd winkelbestand (o.a. 2 supermarkten, bakker, drogist, diverse kledingwinkels), horecagelegenheden en het recreatiepark Emslandermeer. Het dorp biedt ontspanning met een 9-holes golfbaan, diverse sportverenigingen, een zwembad, viswater en uitgebreide fiets- en wandelmogelijkheden.
Openbaar vervoer: Hub Vlagtwedde is een centraal busstation met verbindingen richting Winschoten, Ter Apel, Stadskanaal en Emmen.