Beschrijving

Wonen aan De Houtwal 6 - Ruimte, rust en gemak in Veendam (Ommelanderwijk)

Zoek je een plek waar je net wat extra ruimte hebt, waar je lekker rustig woont zonder het idee helemaal buiten de wereld te zijn? Dan is De Houtwal 6 in Veendam misschien precies wat je zoekt. Op een fijne plek aan een doodlopend straatje, zonder al het doorgaande verkeer, staat deze twee-onder-een-kapwoning met verrassend veel mogelijkheden.

*** Ruime woonkamer met lichtinval

Zodra je binnenloopt, merk je het meteen: de woonkamer is ruim en licht. Grote ramen zorgen de hele dag voor prettige lichtinval. En dan die luxe harmonica deuren… Open ze op een mooie dag, en de woonkamer loopt zo naadloos over in het terras met overkapping. Heerlijk als je binnen en buiten wilt combineren, of gewoon even snel naar buiten wilt stappen met je kop koffie.

*** Ruimte voor iedereen

Met vier volwaardige slaapkamers op de verdiepingen is er plek zat: een eigen kamer voor ieder gezinslid, maar ook ruimte voor bijvoorbeeld een hobbykamer of thuiswerkplek. Je hoeft dus geen compromissen te sluiten.

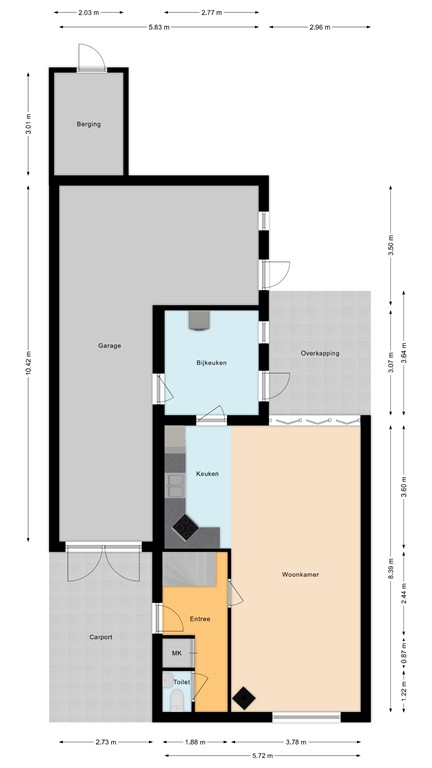
*** Aangebouwde garage en carport

Nog zo’n pluspunt: de garage van maarliefst 39m². Niet zomaar een hokje voor de fietsen, maar echt een ruimte waar je serieus kunt klussen, bewaren of zelfs een aanhangwagen binnen zet als je wilt. Met de carport ervoor sta je nooit meer te tobben als het regent; droog uitstappen is hier de gewoonste zaak van de wereld.

*** Dubbele overkapping in de tuin 

In de tuin achter het huis vind je niet één, maar twee ruime overkappingen. Dus of je nu graag buiten eet, langer wilt genieten van je avond of gewoon het hele jaar rond plekken zoekt om droog te zitten – dát is hier geregeld.

*** Rustige ligging zonder gedoe

Voor wie gesteld is op privacy en rust, is de ligging perfect. De Houtwal is een doodlopend straatje, dus je krijgt er alleen auto’s van buren en bezoekers voor je deur. Ook kinderen kunnen hier naar hartenlust spelen, zonder zorgen over druk verkeer. Het geheel staat op een perceel van 311m². Ruim genoeg om plezier van je tuin te hebben, zonder dat je ieder weekend hoeft te maaien en schoffelen. Wel de lusten, niet de lasten.

Heb je zin om het eens zelf te zien? – Neem voor meer informatie of een bezichtiging snel contact op met team REGIO MAKELAAR in Stadskanaal. Wij kijken ernaar uit om je te verwelkomen en je rond te leiden.

Indeling

- Entree, hal, meterkast
- Toilet met fonteintje
- Woonkamer met pellet kachel en laminaat vloer en harmonicadeuren met hor naar overkapping/achtertuin
- Keuken voorzien van oven, 4-pits inductiekookplaat, schouw, koelkast, vaatwasser, combimagnetron 
- Geheel geïsoleerde en betegelde bijkeuken met wasmachine- / drogeraansluiting, deur naar garage en deur naar achtertuin
- Ruime garage van ca. 39m²
- Carport

Eerste verdieping

- Overloop
- Badkamer voorzien van inloopdouche, wastafelmeubel, toilet en dakraam.
- 3 Slaapkamers waarvan 2 met dakkapel

Tweede verdieping

- Overloop met cv-opstelling
- 4e Slaapkamer

Bijzonderheden

- Dakisolatie
- Betonvloeren met vloerisolatie
- Spouwmuurisolatie
- Grotendeels voorzien van kunststof kozijnen met HR++ glas (2024) 
- De openslaande ramen zijn voorzien van horren
- Aluminium harmonicadeur 2023
- Cv-ketel Nefit Excellent HR combi uit 2006, eigendom
- Pellet kachel 13kw

Kenmerken