Beschrijving

Ben jij op zoek naar een energiezuinige, instapklare woning op loopafstand van het centrum van Veendam? Dan is Boven Westerdiep 85 wellicht wat je zoekt. 

Deze karakteristieke 2-onder-1-kapwoning met 3 slaapkamers voelt ruim, licht en direct prettig bij binnenkomst. Dankzij energielabel A, een gloednieuwe cv-ketel én warmtepomp (beide uit 2025) woon je bovendien comfortabel en toekomstgericht.

De woonkamer is een fijne leefruimte met grote ramen en een open keuken die in 2024 volledig is vernieuwd. Hier kook je modern, praktisch en met plezier, terwijl je in contact blijft met de rest van het gezin. Achter de woning ligt een besloten tuin: een rustige plek om heerlijk buiten te zitten, te spelen of gewoon even te genieten van de dag.

Op de eerste verdieping vind je drie ruime slaapkamers, ideaal voor een jong gezin of voor wie graag een werk- of hobbykamer wil. De badkamer bevindt zich eveneens op deze verdieping en is praktisch ingedeeld.

De woning beschikt over een aangebouwde berging en ligt op een perceel van 148 m². Alle dagelijkse voorzieningen, winkels, scholen en openbaar vervoer liggen dichtbij. Wonen op een centrale plek, maar toch met rust en privacy.

Kortom: een frisse, comfortabele en duurzame woning op een toplocatie in Veendam. Helemaal klaar voor de volgende bewoners.
Neem voor meer informatie of een bezichtiging snel contact op met team REGIO MAKELAAR in Stadskanaal. Wij kijken ernaar uit om je te verwelkomen en je rond te leiden.

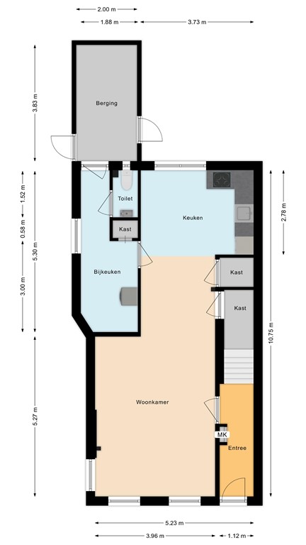
Indeling

- Hal met meterkast en trapopgang
- Lichte woonkamer met laminaat vloer
- Vaste provisiekast
- Open keuken (2024) voorzien van inductiekookplaat, afzuigkap, vaatwasser, koelkast en combimagnetron
- Bijkeuken met wasmachine-/drogeraansluiting en vaste kast
- Toilet met fonteintje
- Berging met achterom en deur naar de tuin

Eerste verdieping

- Overloop met vaste kastruimte
- 3 Slaapkamers, allen voorzien van laminaat vloeren
- Badkamer met douche, toilet, wastafelmeubel en designradiator

Tweede verdieping

- Vliering  bereikbaar middels vlizotrap

Bijzonderheden

- Energielabel A
- Dak- en vloerisolatie (2025) , Dubbel glas en HR++ glas
- Warmtepomp (2025) Intergas Xtend 5 kW 
- Cv-ketel, Intergas HRE (2025)
- Keralit boeidelen en dakkapellen voorzien van Keralit in 2024
- Besloten, onderhoudsarme achtertuin
- Nieuwe deuren 1e verdieping (2024)

Kenmerken