Beschrijving
Aan de rand van Stadskanaal, in een landelijke en rustige omgeving, staat deze karakteristieke 2-onder-1-kapwoning op een royaal perceel van maar liefst 1.045 m² eigen grond. Een plek met ruimte, vrijheid en volop mogelijkheden.
De woning heeft een authentieke uitstraling en biedt een goede basis voor wie de handen uit de mouwen wil steken. Het geheel is te moderniseren, wat het juist interessant maakt voor starters en handige kopers die hun eigen woonwensen willen realiseren. Met de ruime kavel zijn er daarnaast volop kansen voor bijvoorbeeld een uitbouw, een grote tuin of andere invullingen naar eigen inzicht.
De ligging is prettig: landelijk wonen met vrij uitzicht, maar toch op korte afstand van de voorzieningen van Stadskanaal. Hier woon je rustig, met alle dagelijkse gemakken binnen bereik.
Kortom: een woning met karakter, ruimte en potentie, op een mooie locatie voor wie op zoek is naar een project met toekomst.
Neem voor meer informatie of een bezichtiging snel contact op met team REGIO MAKELAAR in Stadskanaal. Wij kijken ernaar uit om je te verwelkomen en je rond te leiden.
Indeling
- Entree, hal, meterkast en trapopgang
- Lichte woonkamer met gaskachel, vaste kast en prachtige hoge ramen
- Zeer ruime woon-/leef keuken met grote raampartijen, een 4-pits gaskooktoestel, afzuigkap, oven en koel-/vriescombinatie.
- Provisiekast met wasmachine-/droger aansluiting
- Achterhal
- Badkamer voorzien van douche, wastafelmeubel en zwevend toilet
- Houten Berging / "klompenhok"
Eerste verdieping
- Ruime overloop
- Slaapkamer met aansluitende toiletruimte met wastafel
- 2e Slaapkamer met vaste kasten
Tuin
- Overkapping (3,46m x 5,82m) aan de achterzijde van de woning
- Berging van 3,31m x 5,10m
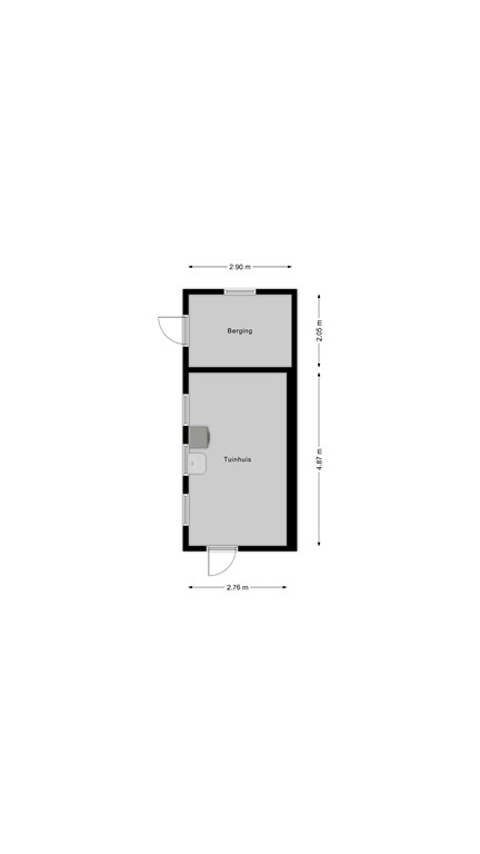
- Berging (2,05m x 2,90m)
- Berging/Tuinhuis (2,76m x 4,87m) voorzien van radiator, wasbak en elektra
Bijzonderheden
- Aan de rand van Stadskanaal
- Landelijke omgeving
- Ruime kavel met volop potentie
- Te moderniseren
- Vernieuwde meterkast
Geïnteresseerden dienen wel rekening te houden met modernisering en opknapwerkzaamheden.