Beschrijving

Landelijk gelegen, net buiten het prachtige vestingdorp Bourtange staat deze ruime vrijstaande woonboerderij en een grote schuur op een royaal perceel van maar liefst 4363m² eigen grond. 

De woonboerderij, met een woonoppervlakte van 161m², beschikt over 3 slaapkamers en een badkamer op de begane grond. Ideaal als je levensloopbestendig wilt wonen. Met een indrukwekkende schuur van 374m² is er voldoende ruimte voor al je hobby's en projecten. Of je nu wilt klussen, tuinieren, paarden wilt stallen of gewoon extra opslagruimte nodig hebt, deze schuur zal aan al je behoeften voldoen. 

Geniet van de landelijke omgeving met alle voorzieningen net over de Duitse grens binnen handbereik. Neem voor meer informatie of een bezichtiging snel contact op met team REGIO MAKELAAR in Stadskanaal. Wij kijken ernaar uit om je te verwelkomen en je rond te leiden.

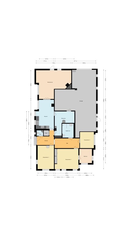
Indeling

- Entree/hal met vaste kast en meterkast
- Woonkeuken met speksteenkachel
- Woonkamer met haard en deur naar de tuin 
- Bijkeuken met wasmachine-/drogeraansluitingen en cv-opstelling
- Badkamer (vernieuwd 2021) met 2e toilet, inloopdouche, wastafel en badkamermeubel 
- 3 Slaapkamer, waarvan 1 met vaste kast en kantoortje/werkkamer/inloopkast

Eerste verdieping

De vliering is via de deel bereikbaar en voor bijvoorbeeld extra woonruimte geschikt te maken.

Tuin

Tuin rondom het object.

Bijzonderheden

- Daken woning en schuur vernieuwd in 2022
- CV-verwarmd, Remeha Calent HR-combi, bouwjaar 2014, eigendom
- Deels kunststof kozijnen 2018 met HR++
- Grotendeels dubbelglas, HR+
- 20 Zonnepanelen (bouwjaar 2020, eigendom)
- Pelletkachel en speksteenkachel
- Badkamer vernieuwd in 2021
- Inpandige deel met sectionaal deur
- Grote stenen schuur 374m² met sectionaal deur, betonvloer en inpandige werkplaats
- De afmetingen van de tuin achter de schuur zijn ca. 60m x 22m en biedt wellicht mogelijkheden voor een rijbak.

Kenmerken